Mondeal Heights in SG Highway, Ahmedabad

Mondeal Heights In SG Highway, Ahmedabad

SG Highway, Ahmedabad

Property Overview

Description

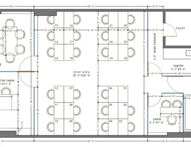
Fully Furnished Commercial Office Space Available At Good Rate & Best Deal.  Furnish Office With Reception and waiting area ,  work stations, Cabin, Server room, Conference Room, A.C., intercom and network connections on all tables, Pantry & Cafeteria,  Attach  toilet. The Property Is Very Well Maintained Build With All The Amenities Like Parking, Security, Water Facility Attach Toilet, Pantry. Available. The Space Can Be Used For Various Businesses Like Insurance & Financial Company OR Head Office Of Any Company, IT Company, Travel Company, Training & Educational Institute. Share Broking Company,  DSA/ DST. Etc.

We Will Charge One Month Rent Brokerage Charge

Property Detail

  • Property ID:
    PROPERTY_2648
  • Property Status:
    For Rent
  • Category:
    Commercial - Office Space
  • Current Status:
    Available
  • Construction Status:
    Ready to Move In
  • Possession By:
    Apr, 2025
  • Property Age:
    New
  • Furniture Status:
    Fully Furnished
  • Cabin:
    2
  • Workstation:
    22
  • Pantry:
    1
  • Conference Room:
    1
  • Reception Area:
    1
  • Bathroom:
    1
  • Ready Setup:
    Yes
  • Water Supply:
    24 Hours
  • Power Supply:
    24 Hours
  • Vastu Complaints:
    Yes
  • Last Updated:
    2025-04-25

Unit Size & Prices

  • Super Builtup Area:
    1611 Sq Ft    1611 Sq.Ft. SBUA
    179 Sq.Yard. SBUA
    149 Sq.Mt. SBUA
  • Builtup Area:
    1611 Sq Ft    1611 Sq.Ft. BUA
    179 Sq.Yard. BUA
    149 Sq.Mt. BUA
  • Price:
    ₹ 89 K*

Location

SG Highway, Ahmedabad

Disclaimer

RES Management is only acting as a medium for providing online advertising services. RES Management does not in any way facilitate and cannot be deemed to be facilitating sales between developers and the visitors/users of the website. The display of information on resmanagement.in with respect to a developer or project does not guarantee that the developer / project has registered under the Real Estate (Regulation and Development), 2016 or is compliant with the same. Before deciding to purchase or taking any other action, you are requested to exercise due caution and to independently validate and verify all information about the project.   RERA Disclaimer

Request a Callback

Res Management
Vishwanath Vyas
RES Management

Contact Details

Mondeal Heights In SG Highway, Ahmedabad

SG Highway, Ahmedabad
Request a callback

Similar Properties

Gala Presidium, Iscon-Ambli Road, Ahmedabad Featured
2
Price on Request

Gala Presidium, Iscon-Ambli Road, Ahmedabad

Iscon Ambli Road, SG Highway, Ahmedabad
Office Space
PROPERTY_3643
Office Space
PROPERTY_3636
The Showcase Iscon Ambli, Ahmedabad | Get Yours Today Featured
3
Price on Request

The Showcase Iscon Ambli, Ahmedabad | Get Yours Today

Iscon Ambli Road, SG Highway, Ahmedabad
Office Space
PROPERTY_3633
The Crest SG Highway, Ahmedabad | Premium Space Ready Featured
2
Price on Request
Office Space
PROPERTY_3625
SHILP BUSINESS GATE WAY SG HIGHWAY AHMEDABAD
1
₹ 4.5 Lac.

SHILP BUSINESS GATE WAY SG HIGHWAY AHMEDABAD

Besides Nirma University, SG Highway, Ahmedabad
Office Space
PROPERTY_3624
Silver Radiance 4 Sg highway Ahmedabad
10
₹ 1.05 Lac.
Office Space
PROPERTY_3623

WESTGATE SG HIGHWAY AHMEDABAD

SG Highway, SG Highway, Ahmedabad
Office Space
PROPERTY_3585
SHILP BUSINESS GATE WAY SG HIGHWAY AHMEDABAD
2
₹ 2.99 Lac.

SHILP BUSINESS GATE WAY SG HIGHWAY AHMEDABAD

Besides Nirma University, SG Highway, Ahmedabad
Office Space
PROPERTY_3564
Request a Callback
img
RES Management
online
RES Management
Hi, How can I help you ?
Start chat
Chat with us